Vincent BOISSON Négociateur
Télécharger la fiche

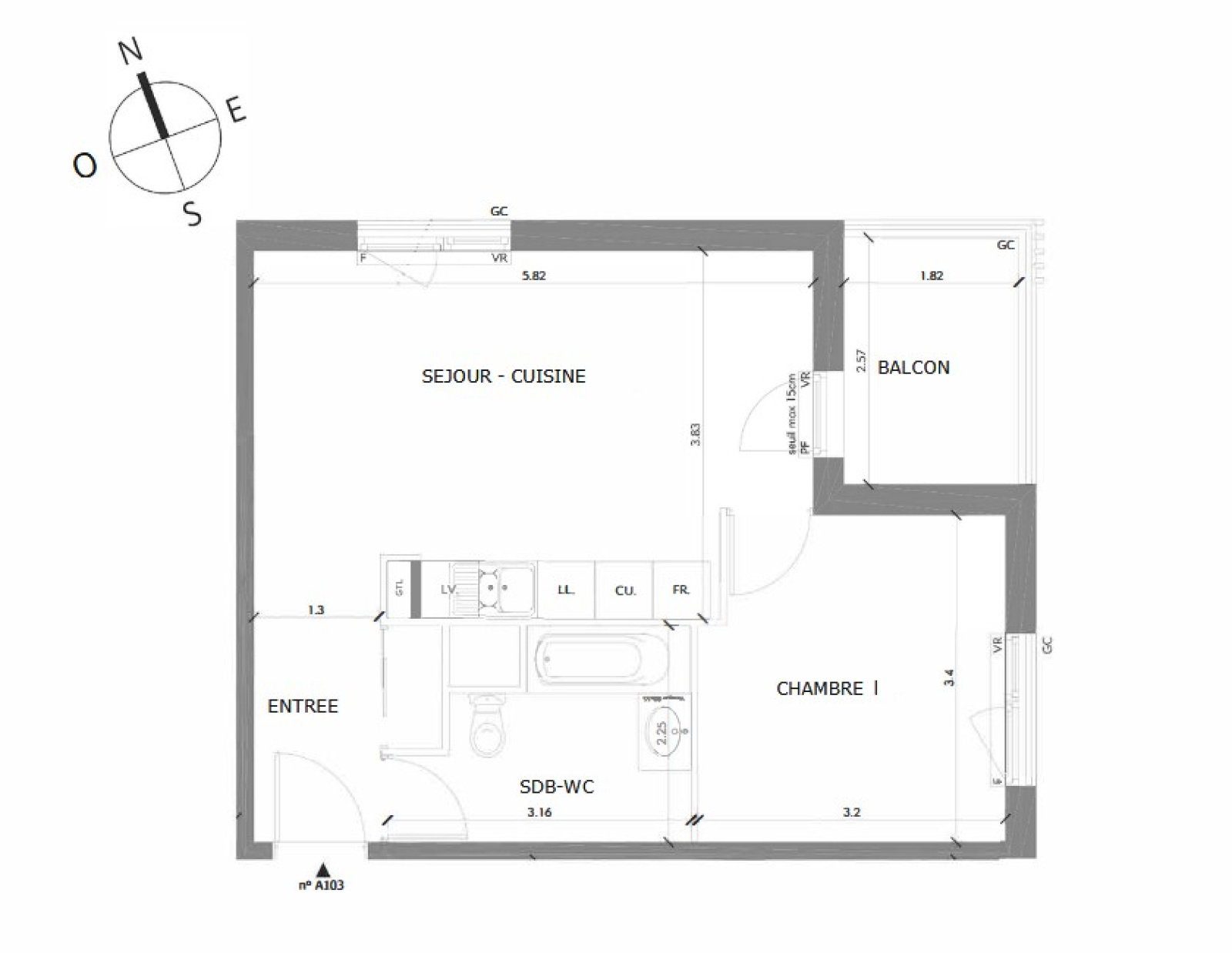
Appartement 2 pièce(s) 1 chambre(s) 40.9 m²

Ugine (73400)
159 200 € Référence 124

A propos de ce bien

PROGRAMME NEUF - HORIZON - APPARTEMENTS DU T2 AU T4 AU COEUR D'UGINE ! Située au sein d'un quartier résidentiel niché sur les premières hauteurs d'Ugine, à mi-chemin entre Albertville, Annecy et le Val d'Arly, HORIZON s'inspire des codes de l'architecture local tout en y intégrant une touche contemporaine et élégante. Découvrez sans tarder ce nouveau programme proposant 64 appartements du T2 au T4 répartis en 3 bâtiments à proximité des commerces essentiels et des différents services. Un cadre de vie exceptionnel entre lac et montagne disposant d'une connexion rapide à l'autoroute A430, au service de bus de l'agglomération Arlysère ainsi qu'à la piste cyclable. >> Profitez des avantages de l'acquisition en VEFA : prêt à taux zéro, frais de notaire réduits, norme RE2020, nombreuses garanties à l'achat... Renseignez-vous en agence ! < < > T2 à partir de 159 200 € > T3 à partir de 208 000 € > T4 à partir de 275 600 € Plus d'infos ? Votre agence REPUBLIC à ALBERTVILLE : 57 rue de la République 04 57 35 03 92 / contact@agencerepublic.fr Les informations sur les risques auxquels ce bien est exposé sont disponibles sur le site Géorisques Bien non soumis aux obligations légales de débroussaillement.
Les informations sur les risques auxquels ce bien est exposé sont disponibles sur le site Géorisques

Caractéristiques de ce bien

  • Surface 40,90 m²
  • 1 chambre(s)
  • 1er étage
  • 4 étage(s)

Diagnostics énergétiques

DPE
GES
DPE en cours

Informations financières

Prix de vente 159 200 € Les honoraires d'agence seront intégralement à la charge du vendeur

Calcul des mensualités

* Champs obligatoires